您现在的位置:
首页
>
政府信息公开
>
市政府组成部门
>
市自然资源局
>
通知公告
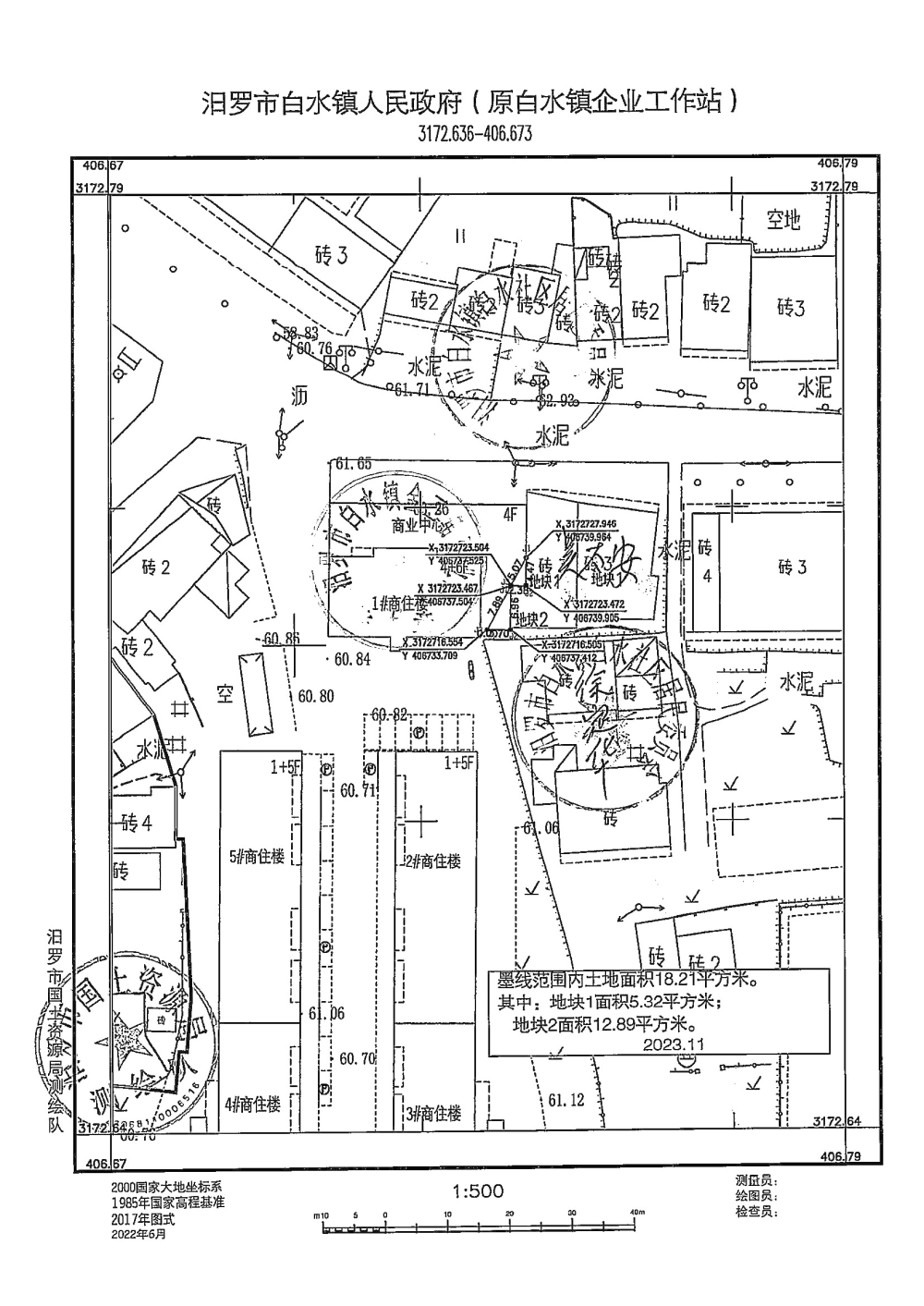
关于确定汨罗市白水镇人民政府(原白水镇企业工作站)国有建设用地使用权的公告
来源:汨罗市自然资源局
日期:2023-12-06 09:15
浏览量:
1
|
|
|
|