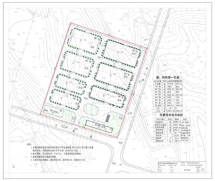
湖南迅刻节能科技有限公司“年产2400台商用节能炉具”建设项目的“2#、4#、6#厂房、办公楼”规划批前公示
来源:汨罗市规划局
日期:2017-12-26 10:36
湖南迅刻科技有限公司向我局申请“年产2400台商用节能炉具”建设项目的“2#、4#、6#厂房、办公楼”建设工程规划许可,我局现将“年产2400台商用节能炉具”建设项目的“2#、4#、6#厂房、办公楼”建设工程规划许可内容向社会进行公示,公示时间为2017年12月26日到2018年1月1日,相关单位或个人若有不同意见请在公示期内以文字、电话及其它形式与我局联系,逾期我局再在受理。
联系电话:0730-3382206
联 系 人:钟 林




