归档时间:2019-04-25
您现在的位置:
首页
>
政府信息公开
>
市政府组成部门
>
规划局
>
通知公告
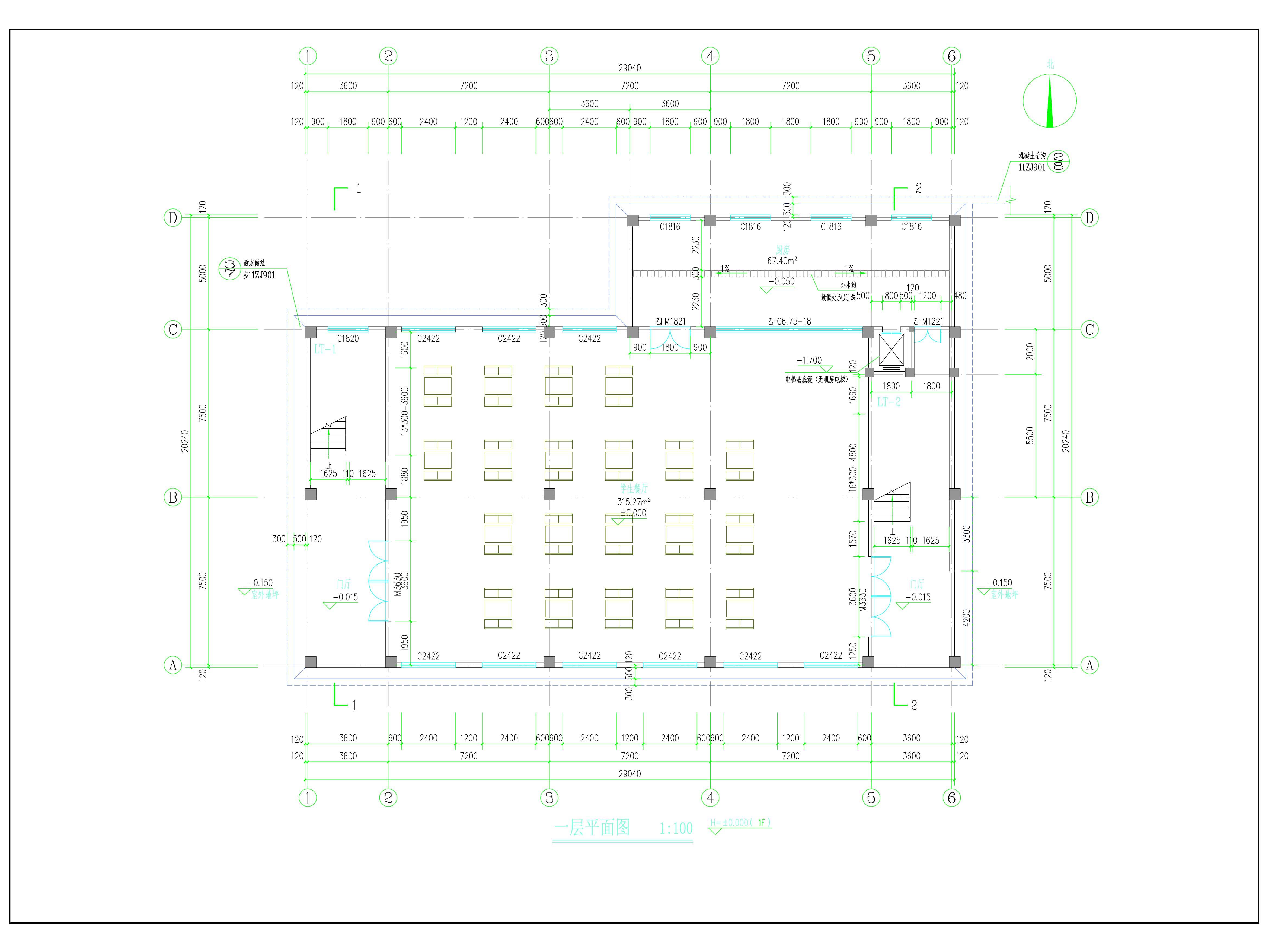
汨罗市新市镇新书小学综合楼建设项目规划批前公示
来源:汨罗市规划局
日期:2017-06-15 09:29
浏览量:
1
|
|
|
|