归档时间:2019-04-25
您现在的位置:
首页
>
政府信息公开
>
市政府组成部门
>
规划局
>
工作动态
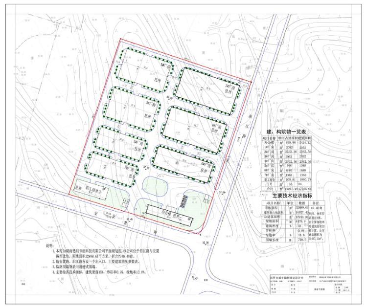
湖南迅刻节能科技有限公司“年产2400台商用节能炉具”建设项目的“2#、4#、6#厂房、办公楼”规划批前公示
来源:汨罗市规划局
日期:2017-12-26 07:59
浏览量:
1
|
|
|
|