您现在的位置:
首页
>
政务公开
>
通知公告
>
规划公示
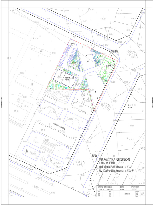
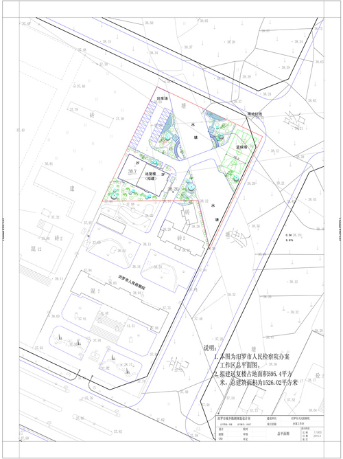
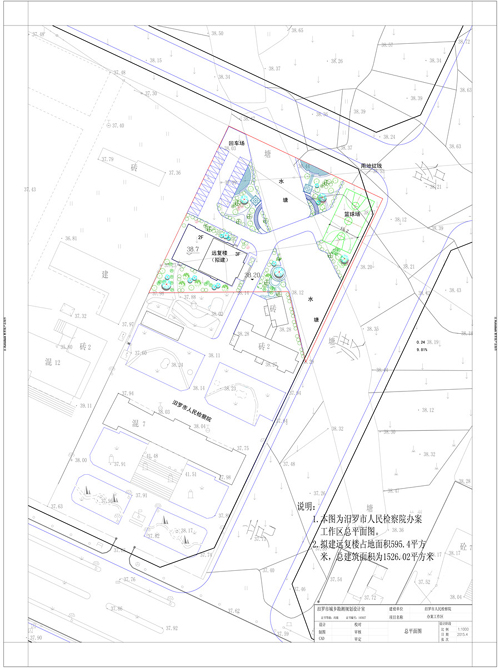
汨罗市检察院新建远复楼建设项目批前公示
来源:政务中心
日期:2015-05-05 00:00
浏览量:
1
|
|
|
|