归档时间:2019-05-09
当前位置:
首页
>
其它
>
政务公开工作要点
>
助力稳增长
>
重大建设项目
>
项目审批
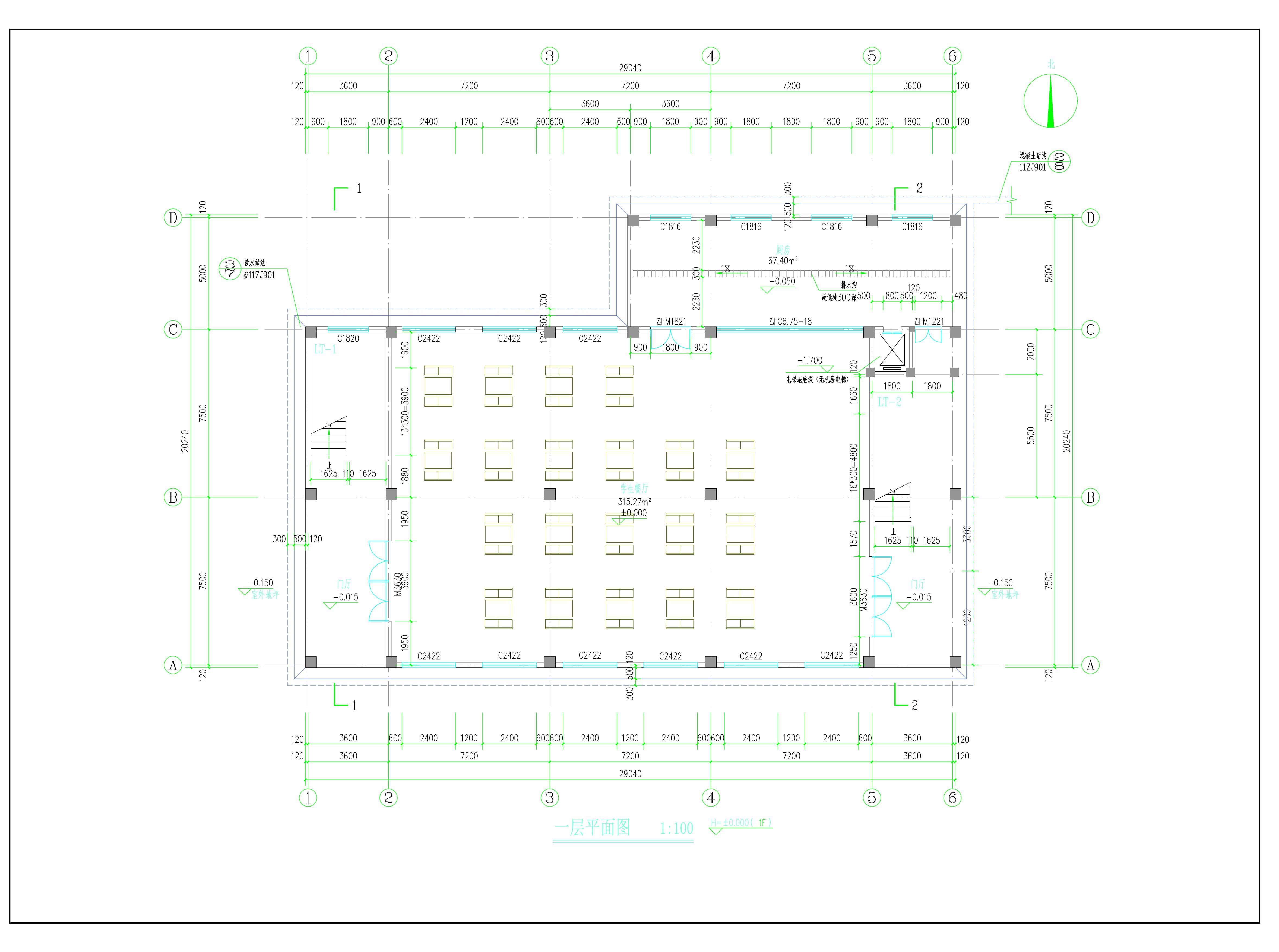
汨罗市新市镇新书小学综合楼建设项目规划批前公示
来源:
汨罗市规划局
日期:
2017-06-15 16:10
【字号:
大
中
小
】
视力保护色:
分享至:
浏览量:
1
次